Deposito in vendita

Napoli, Vico S. Maria del Pozzo - Stella
€ 30.000
1 locale 1 locale
103 Mq 103 Mq
1 bagno 1 bagno

Deposito in vendita

Napoli, Vico S. Maria del Pozzo - Stella

Descrizione annuncio

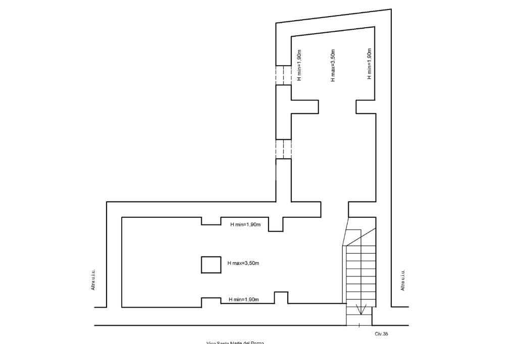
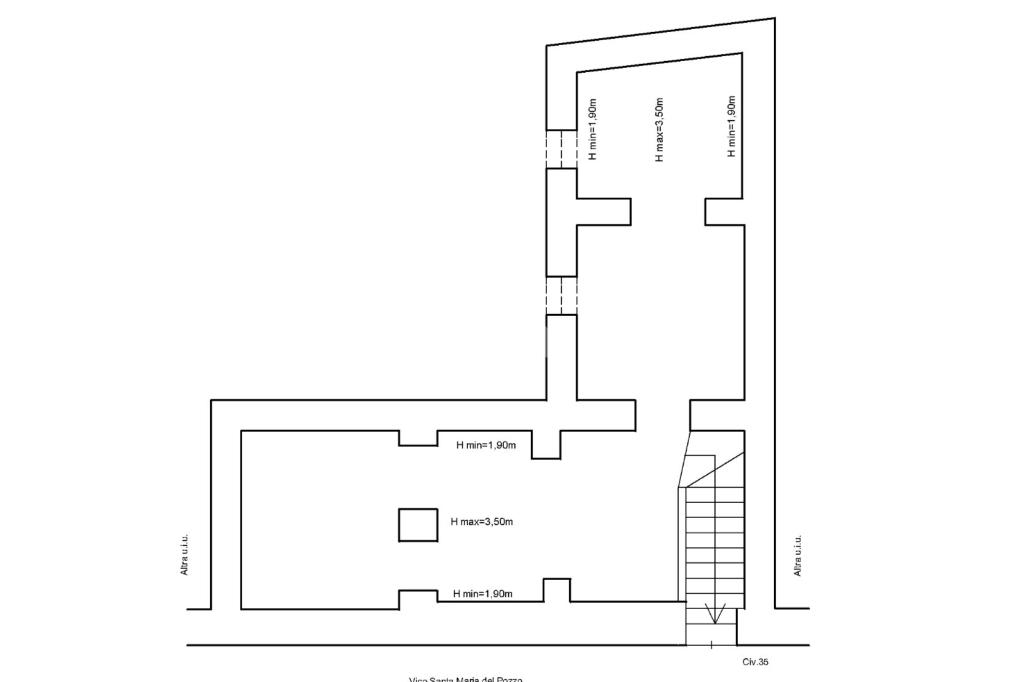
In via Santa Maria del Pozzo, nei pressi del quartiere Sanità, proponiamo in vendita un ampio deposito di circa 103 mq situato al piano seminterrato.

L'immobile è fronte strada, facilmente accessibile, e si presenta in buone condizioni interne.

È composto da un ampio ambiente principale e da un bagno. Grazie alla posizione strategica e alla metratura generosa, si presta a diversi utilizzi, come locale deposito, laboratorio o attività artigianale.

Visionabile tutti i giorni previo avviso telefonico.

Per ulteriori informazioni può contattarci telefonicamente o tramite whatsapp al numero 081.189.41.371 o scriverci al seguente indirizzo e-mail: naci5.
Un nostro agente sarà pronto a rispondere alle vostre domande con professionalità e cortesia. Seguici anche sulla pagina Facebook: Agenzia Tecnocasa per l'Impresa Napoli Dante e su Instagram: Tecnocasaimpresapessina

Mostra tutto

Nelle vicinanze

Trasporto pubblico Trasporto pubblico
Museo
Museo
310 m
Materdei
Materdei
790 m
Napoli Piazza Cavour
Napoli Piazza Cavour
240 m
Montesanto
Montesanto
1,2 Km
Trasporto pubblico
1,5 Km
Ricariche auto elettriche Ricariche auto elettriche
EnelX EVA+ Ferraris Napoli
2,5 Km
Scuole Scuole
ISIS T. Campanella / IC Casanova
270 m
Università "SUN" - Dipartimento di Salute Mentale, Fisica e Medicina Preventiva
320 m
Scuole
340 m
Università "SUN" - Istituto di Anatomia Patologica "L.Armanni"
400 m
Università "SUN" - Complesso di Santa Patrizia
450 m
Farmacia Farmacia
Farmacia
170 m
Farmacia Dott. Russo
260 m
Farmacia al duomo
570 m
Farmacia Dr. Ant. Mirone
730 m
Farmacia Dottori di Maggio
790 m
Ospedali Ospedali
Ospedali
310 m
Ospedale Santa Maria del Popolo degli Incurabili
330 m
Ospedale Santa Maria degli Incurabili
330 m
Università SUN - Policlinico
380 m
Università SUN - Poliambulatorio
530 m
Supermercati Supermercati
Ottimo Market
230 m
Decò
270 m
Sigma
300 m
Carrefour Express
390 m
Superò
820 m
Negozi Negozi
Omega srl
140 m
Negozi
180 m
CRAI
350 m
Rescigno
460 m
Sri Lankan Trades alimentari
700 m
Bar Bar
Bar S. Paolo
540 m
Caffe Spaccanapoli
560 m
Enoteca del Grottino
590 m
Alter Ego
640 m
Jurdau
710 m
Ristoranti Ristoranti
Pizzeria antico borgo
90 m
Concettina ai Tre Santi
120 m
Pizzeria Filumena Chicchinese
190 m
Capasso
340 m
Lombardi
340 m
Mostra tutto

Caratteristiche

Rif.:
61136186
Piano:
Ammezzato di 1
Totale piani:
1
Condizionamento:
Autonomo
Ascensore:
No
Riscaldamento:
Autonomo
Mostra tutto
Prezzo Prezzo
€ 30.000
Prezzo box Prezzo box
€ 1
Rata mutuo Rata mutuo
€ 141 / mese
Spese annue Spese annue
€ 1
Proponi il tuo prezzoProponi il tuo prezzo

Classe Energetica

G
G
G
G
G
G
G
G
G
EP globale non rinnovabile:
175.00 kW h/m² anno
EP globale rinnovabile:
175.00 kW h/m² anno
EP invernale del fabbricato:
EP estiva del fabbricato:
Anno di costruzione:
1970
Riscaldamento:
Autonomo
Tipo impianto:
Ad aria
Tipo alimentazione:
Metano

Ti interessa visionare l'immobile?

Fissa un appuntamento  Fissa un appuntamento

Richiedi informazioni

Clicca su Leggi per aprire l'informativa
* Questi campi sono obbligatori

Calcola il tuo mutuo

Semplice e senza impegno
Anticipo

( % )
Mutuo

( % )

pochi semplici passi

inserisci i tuoi dati
Questionario completato
Grazie per aver richiesto un appuntamento senza impegno con un nostro Consulente del Credito e Assicurativo.

Hai inserito correttamente tutti i dati necessari e a breve riceverai una e-mail con un link da convalidare per inviare i tuoi dati.
Affiliato
Trade Immobiliare Srl
Via Enrico Pessina, 88 80133 Napoli (NA)

Il nostro staff


  • Anna Ciancio
    Coordinatrice

  • Daniele Orcesini
    Collaboratore
Via Enrico Pessina, 88 80133 Napoli (NA)
Zona: Zona Toledo - Museo - Centro storico
Mostra su mappa
Affiliato
Trade Immobiliare Srl
Via Enrico Pessina, 88 80133 Napoli (NA)

2025 Tecnocasa Franchising S.p.A. - P. IVA 08365160152 - Via Monte Bianco 60/A 20089 Rozzano (MI). Ogni agenzia ha un proprio titolare ed è autonoma. Privacy policy | Policy utilizzo | Cookie policy